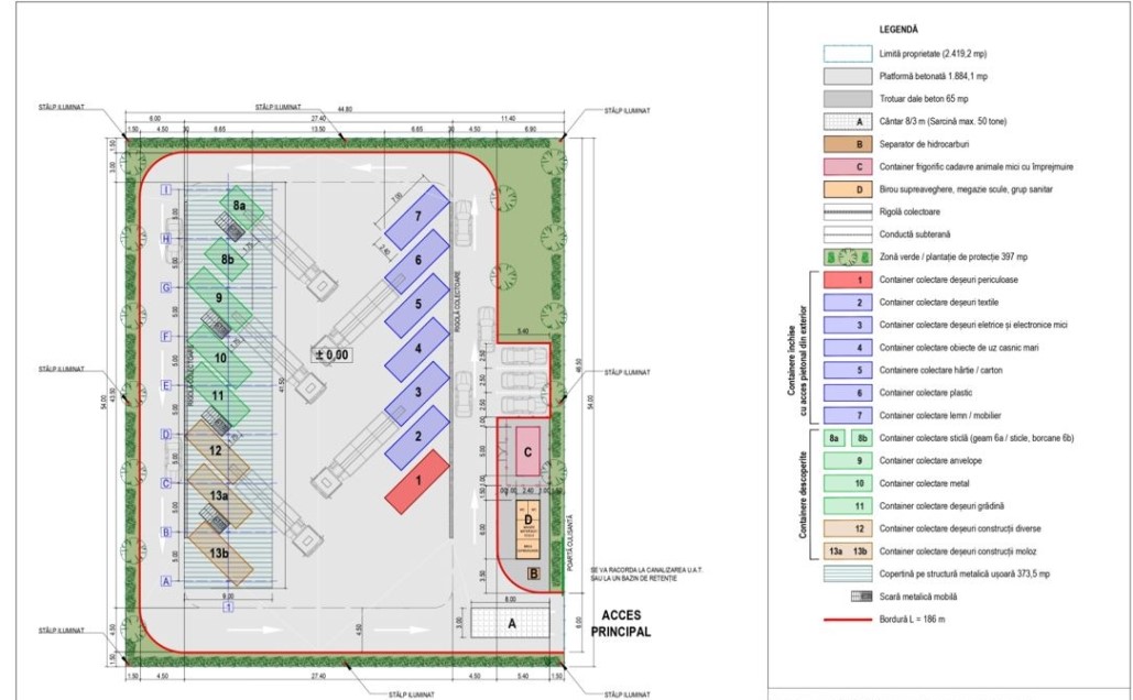
CENTRU DE COLECTARE SELECTIVĂ A DEȘEURILOR PRIN APORT VOLUNTAR ÎN COMUNA BOTIZA, JUDEȚUL MARAMUREȘ
finanțat prin Programul Național de Redresare și Reziliență (PNRR)
UAT Comuna Botiza implementează proiectul :
Obiectivele proiectului: Dezvoltarea unui management al deșeurilor eficient, prin suplimentarea capacităților de colectare separată, pregătire pentru reutilizare și valorificare a deșeurilor în vederea continuării procesului de conformare cu prevederile directivelor specifice și a tranziției la economie circulară.
Valoarea totală a proiectului: 3.830.914,00 lei
Data începerii și finalizării proiectului: 13.03.2023 - 30.09.2024
Cod Proiect: C3I1A0122000382
Mai multe informații despre proiect
PNRR. Finanțat de Uniunea Europeană – UrmătoareaGenerațieUE
Conținutul acestui material nu reprezintă în mod obligatoriu poziția oficială a Uniunii Europene sau a Guvernului României.
https://mfe.gov.ro/pnrr/ https://www.facebook.com/PNRROficial
